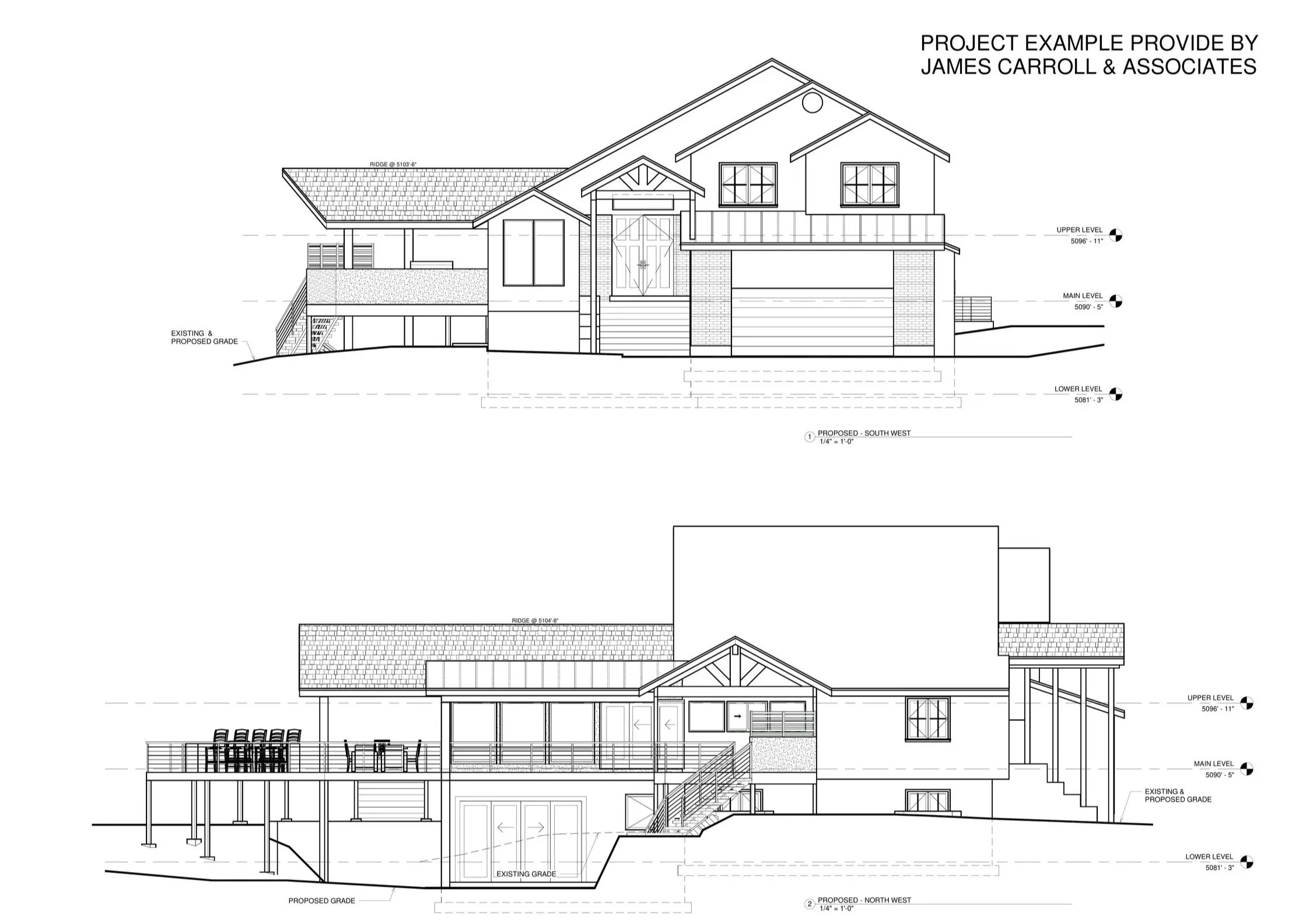
Draper, Utah - Completed fall 2024

Design Collaboration with James L Carroll & Associates

casserly was designed around a singular vision: creating exceptional spaces for entertaining. an expansive rear deck and greatly enlarged kitchen and dining areas work together to form a seamless flow for hosting, all framed by dramatic views over the salt lake valley. the lower level provides a curated private retreat, offering a counterpoint to the home’s lively and cosial upper spaces

Previous
Previous

CENTAUR 251

Next
Next

MAIN STREET REMODEL