Alpine, Utah - Completed May 2025

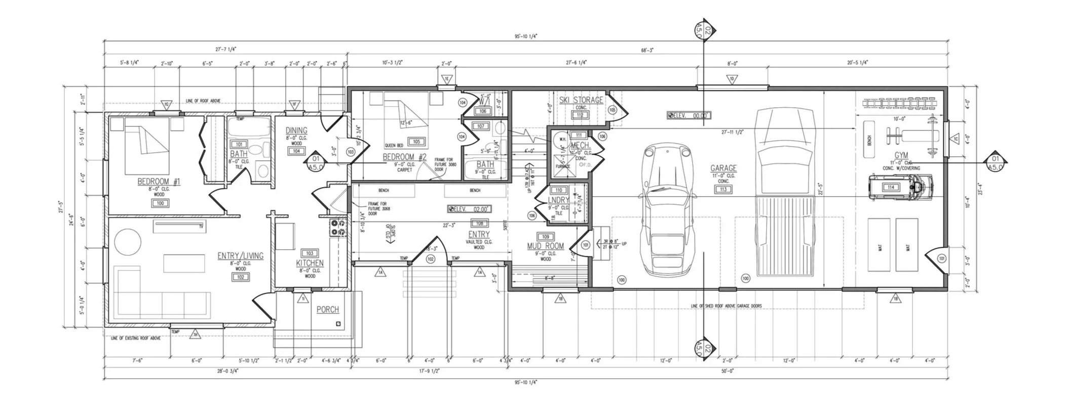
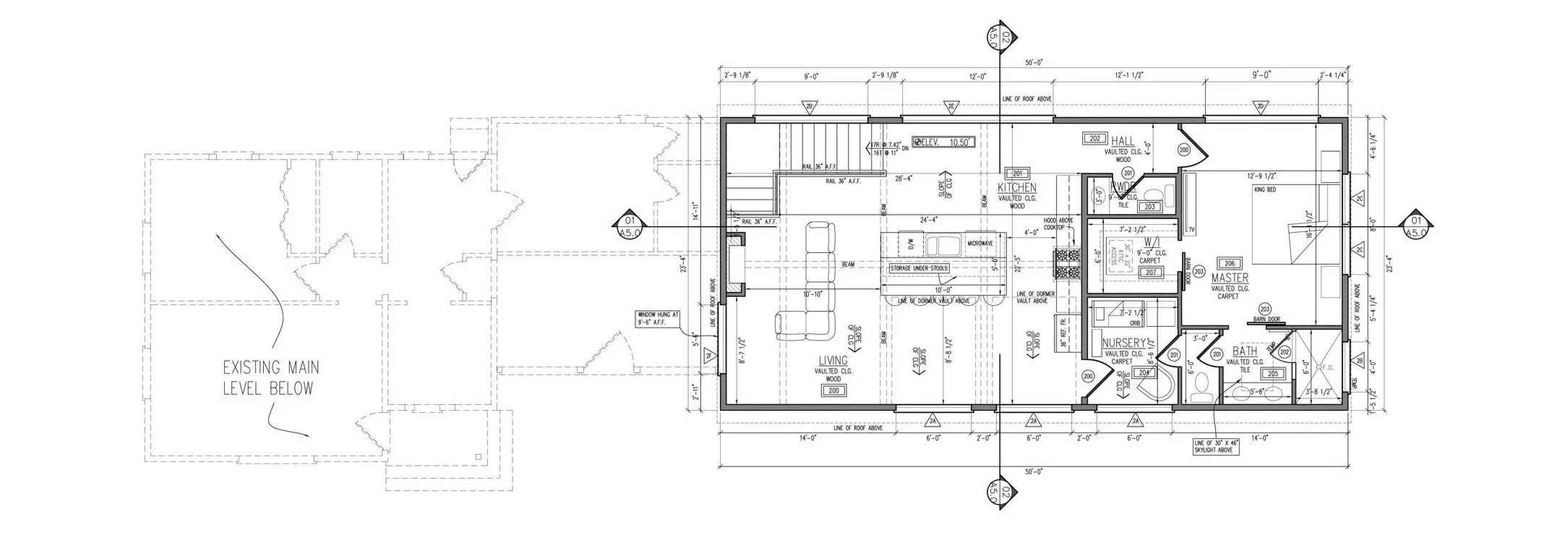
located on a flat, unassuming parcel in alpine, this remodel transformed a neglected two-bedroom, one-bath home into a refined, view-oriented residence tailored to a growing family. with no natural slope to elevate the home, our strategy centered on building upward to fully capitalize on the site’s views of lone peak and the surrounding alpine mountains. the existing footprint was completely reimagined and expanded to introduce two additional bedrooms and two new bathrooms, significantly enhancing livability and long term flexibility.

Previous
Previous

CASSERLY ADDITION